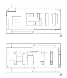
2005 – C1 House – Nicolas Gwenael + Tomoyuki Utsumi
Architectural guide curated by Swiss Architect Lukas Gruntz to Tokyo's most worth seeing modern buildings – from Kunio Maekawa to Sou Fujimoto
2005 – C1 House – Nicolas Gwenael + Tomoyuki Utsumi