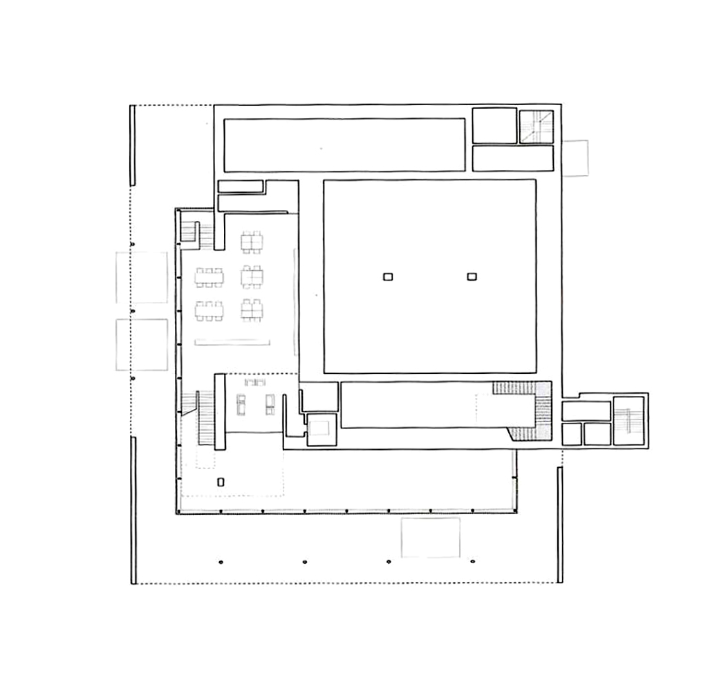
1999 – Gallery of Horyuji Treasures – Yoshio Taniguchi
Architectural guide curated by Swiss Architect Lukas Gruntz to Tokyo's most worth seeing modern buildings – from Kunio Maekawa to Sou Fujimoto
1999 – Gallery of Horyuji Treasures – Yoshio Taniguchi