Architectural guide curated by Swiss Architect Lukas Gruntz to Tokyo's most worth seeing modern buildings – from Kunio Maekawa to Sou Fujimoto
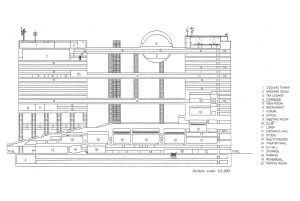
1996 – Fuji TV – Kenzo Tange
Δ