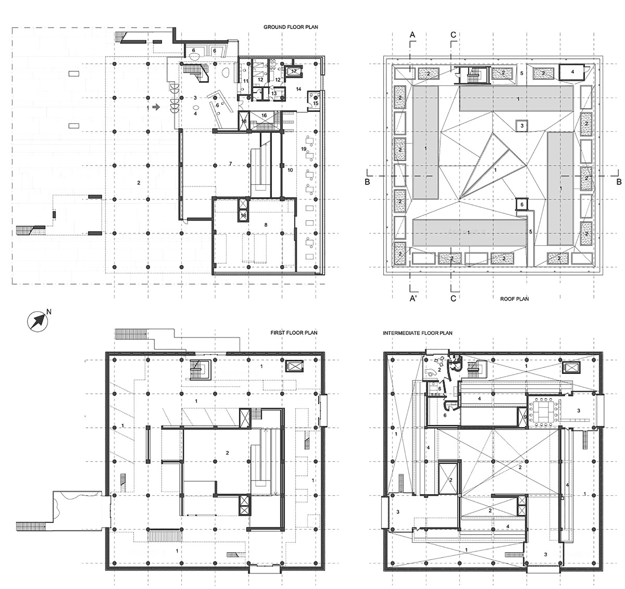
Tokio_museum_plans National Museum of Western Art by Le Corbusier Posted on August 10, 2016August 10, 2016